昆山琨悦里售楼处电话→国创招商琨悦里售楼中心首页网站→【营销中心】楼盘百科详情-户型配套
扫描到手机,新闻随时看
扫一扫,用手机看文章
更加方便分享给朋友
国创招商 · 琨悦里
昆山琨悦里
售楼处电话400-186-1314转6000【售楼中心】
24小时热线◆温馨提示:看房需提前预约
售楼处电话400-186-1314转6000【售楼中心】
〢尊享售楼处🍂销售专业讲解〢
◆在售房源户型价格详询售楼处〢一对一热情服务
国创招商 · 琨悦里展示区
Guochuang Merchants · Luxury Villa
中国,苏州
Suzhou, China
今天,地产建筑设计的市场环境日趋严苛,在高速周转的市场运作状态下,风格,客户,产品附加值等等语汇频率越来越高。招商“美学系”就诞生在这样的语境之下。在美学系的第一座落成项目 -- 上海浦江招商揽阅,因地形局促,促使我们思考将建筑的内在之美外显,以美学之长,补前场空间之短;以表达上的简约手法,揭示项目品质的纯粹与珍稀。传统示范展示区强调松弛感,开阔水面或密林叠嶂。而揽阅的庭院是相对封闭内向的。从室外空间铺陈上,观者的视线往往落在花窗之外,边庭之间,有意犹未尽感;而在室内部分,参与者视线的营造更趋于集中,类似于橱窗陈设,目的性和戏剧性更强烈。在主题视觉中心之外,刻意的大面留白,以缓释视觉上的紧张。
先抑后扬,内向性的空间呈现方式,会让人联想到美术馆,也更似乎能在空间技巧之外自然加持一层形而上的光环,使它有了提供附加值,形成系列化的理由。毕竟我们面对的大部分的住宅项目,位置并不靠近大江大海,视线景观未必能让人惊喜,规划条件也不见得具备“四代宅”之类花活的可能性。就比如琨悦里项目所在的苏州昆山,提高产品附加值的方式在哪里?
余华曾写到,检验一个人的标准就是看他把时间放在哪儿。人类把最宝贵的时间往往留在家庭场景,人类最珍藏的情感体会,很多也是在家庭生活中产生。天天对着江景山景是否真的那么必须?艺术,确切说生活的艺术,空间的艺术,应该能够具备超越自然之美的自信。又或者说,在美术馆的上空盖一座住宅,和在海边江边盖一座住宅,究竟哪一个会更有意思呢。
美学特质
——
路易斯康的纪录片中有一段他介绍kimbell美术馆的旁白:“艺术作品就是一种,告诉我们人类的表达可以超越大自然。”用艺术展示及其陈列空间的感官体验来褒奖生活,是美学系生活体验设计的特征。
继承自上海浦江揽阅,琨悦里整体空间也是围合内向型关系,但前后场面积较大,景观有更多的发挥空间;四进庭院,庭院尺度适宜,前后场景观融合。
景观设计通过分析提炼昆曲剧场的元素,呼应碧波荡漾的江南水乡场景,融入昆山属地文化,结合昆曲水上剧场概念,营造大水面景观庭院的氛围,也是赋予景观庭院未来更多的使用场景可能性。
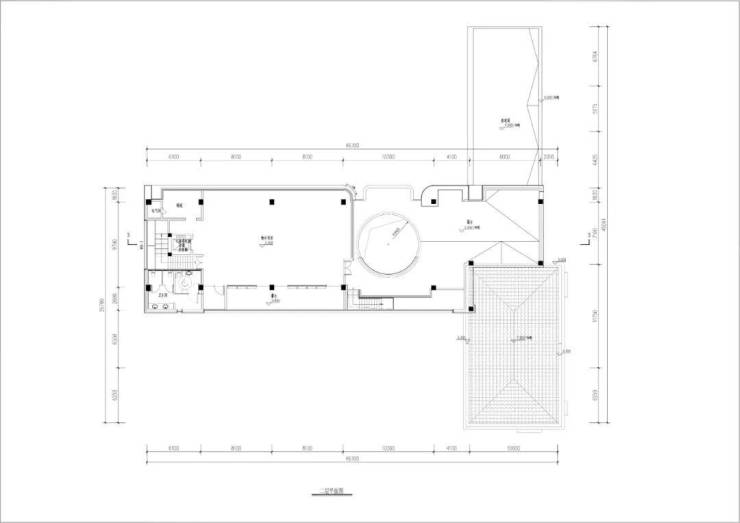
因展示区所用配套楼建筑面积仅400㎡左右,考虑后期使用,同时为更好的表现售楼处的体量感和围合感受,在设计之初,对空间和路径进行了一系列操作:灰空间的设置、延长路径、借景、障景、意境联想等,构建了移步换景的审美范式。首层完全架空,增大建筑体量的同时形成半室外的,通过架空连廊,将未来居民的归家动线纳入到美学系生活体验空间的一体化考虑之中;由社区门廊转折进入景观庭院,第一层的空间豁然开朗,以顺时针方向作为行走动线,迎面主体建筑,穿过水面进入到架空层空间。
主体建筑北侧正面的入口处,结合艺术楼梯及艺术装置,形成点睛之笔,结合艺术楼梯本身的展示性,结合天窗光影变化,赋予空间以感悟,强化昭示效果;这也是行走动线上的重要节点,艺术装置和天光的引入,增加了游览路径上感官的丰富性。
最中心位置的可变景观装置,结合水景光影互动,昆山“水乡四季”的意象抽象化呈现,折叠江南,是“时间折叠”的理念——将线性四季压缩为空间的瞬时体验。以艺术追溯历史,昆山锦溪文昌阁依水而立,水岸倒影间,是过去与未来对话的缩影,用7150颗灯珠化成星光将历史点亮,将具有昆山江南水乡风情的文昌阁作为记忆的载体,以艺术手法打破虚与实的界限。
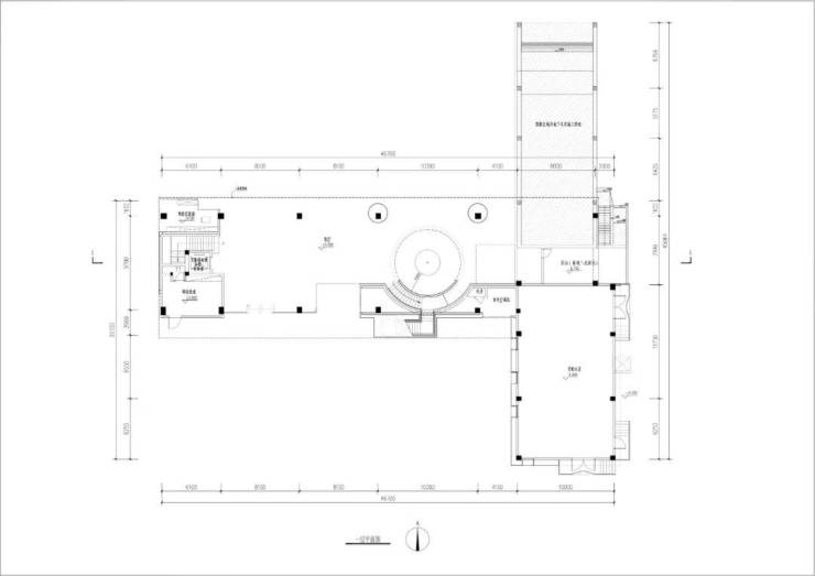
电梯至二楼,形成完整的展示空间,能够装设、陈列和展示艺术品,也是销售前期的重要的宣介和展示空间。顶板的天窗引入天光,赋予陈列品和沙盘展示区更多光影变化,提升展示氛围。二层局部露台,与昭示性空间呼应,露台贴临水面,形成视线对话,增添游览空间以趣味性。与之氛围相对应,交通梯段、门窗选型、室内装饰乃至采光布置方式,均借鉴参考了美术陈列场馆的布置逻辑,弱化以往强表述的语言风格,减少对参观的氛围影响,提高沉浸式的体验感受,多专业一体化设计,形成多维感知的升华。
也由这几座项目的实践与落地,我们提出四个维度的设计逻辑,构建起了招商“美学系”的时空场景:
1:社会层面的艺术普及,将艺术下沉到生活场景中:无论是美术馆化的商场例如芳草侨福地、K11,还是更强调大众参与的上海当代PSA、浦东MAP等新一代的艺术场馆,均在社会生活触手可及的方方面面普及美学价值,美学系就能有广泛的受众基础;
2:以打造艺术品的态度打造示范区,以完整作品的要求,统筹建筑、景观、幕墙、室内和灯光的风格高度一致,实现一体化设计;
3:建筑语汇干净、简洁、自然,极简的立面处理方式与美学和艺术气质靠近;
4:近人尺度精益求精的细节提升空间品质。拉丝不锈钢、型材和石材面处理,室内外细节无缝过度,已经装置艺术的配置,共同构成复合型审美场域,实现从感官愉悦到精神超越的升华。
我希望这里能成为一个让大家习习思考何为美好人生的空间。在这个时代,这样的时间和空间太少了。艺术是为内省服务的,所以我们也需要用于内省的灵性空间。
——福武本一郎在地中美术馆开幕式上致辞
多年前环濑户内海拜读安藤作品,历经各种交通工具,在天色昏暗的下午五点抵达最后一站,几乎是世界尽头的直岛地中美术馆。打卡拍照,完成任务转身返程是疲惫身心的唯一诉求。
但是,我们穿越黑暗走廊后豁然开朗,站在一幅六米宽,两米高的莫奈《睡莲.日落》面前,天光和地面同色,画中波影在现实中却呈现如梦境;得益于70万颗倒角白色石子拼贴的地面和墙面,模糊了视线所及的所有空间边线,“一望无际”。时空的停留和穿越,现实的透视与梦境的再现,相互交织在一起。
路人转粉后开始了对莫奈的追星之旅。在波士顿美术馆MFA,《穿日本和服的莫奈夫人》实证了莫奈和东方世界之间的千丝万缕。多年之后翻书又偶知,正是在这里,1999年莫奈作品专题大展促成了福武本一郎对那幅六米宽《睡莲》的浓厚兴趣,天价收购并进而有了在直岛专门修建地中美术馆置放《睡莲》的念头。观者的美学感受不仅仅停留于现场的沉浸,更应该是立体的,是线性的;它从一个时间原点出发,在旅途中收获、体会,然后又回到原点。溯洄从之,溯游从之。美学的体验,最终交叠在时空的张力之中。
所以,究竟是该先有美术体验的场所和空间,还是先该有馆藏的作品?又或是正如福武先生所说,地中美术馆这个风格质朴但体验感奢华到几近无价的空间,只是为了追求内省的体验?
人和自然的和谐相处,是所谓的遮风避雨;人和人的和谐,是所谓的私密与交往;若是人和自己和谐,平灭内在世界的冲突,养得一平和怡然的心境,这是东方艺术,尤其是以江南园林为代表的空间艺术的重要目的。
所以琨悦里最初空间构型的出发点,就是大水面与架空层之间的对话;是归家动线与美学体验的时空结合,是倦客归家时心灵的庇护,以及与之对立的,“唯有此心无一物”的空灵,而观者在两者间踱步。
“从来湖上胜人间,远爱浮云独自还。孤月空天见心地,寥寥一水镜中山。”
境由心生。因为有了心境的不同,日出日落的片刻须臾,景观的空灵才有了意义;水面与天色之间的莺歌燕语,面红耳赤才有了窥视的趣味。
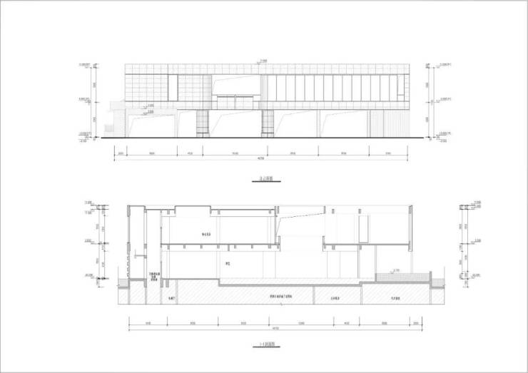
托举起的二层体量,简洁的水洗面贝金米黄石材,留出大面的玻璃幕墙朝向于水面景观,轩楹高爽,窗户虚邻;纳千顷之汪洋,收四时之烂漫。用大面而纯净的材质和纯净的光影关系来素描建筑的体量,用圆和方最基本的母题,内与外相互投射的拓扑关系,来形成戏剧化的视觉焦点,用精致的型材收边勾勒细节。除此之外,计白当黑,落墨谨慎,无画处皆成妙境。
清代画家恽格在评好友唐苂的画时说:谛视斯境,一草一树,一丘一壑,皆洁庵灵想之独辟,总非人间所有。其意象在六合之表,荣落在四时之外。“意象在六合之表”,指超越空间;“荣落在四时之外”,指超越花开花落、生成变坏的时间过程。超越线性时间束缚,追求空间与自然、人文的共生循环。这亦是琨悦里的野心。正因为它不是参观的脚步的空间尽端,不是可有可无的一座周末舞台或是临时销售道具,它是人生旅途绚丽多姿的驿站,是家庭生活喜怒哀乐的重要见证,因而未来皆有可能。
在昆山这样一座浓缩了江南才情和往事,集聚了江南水乡大观气象的千年古城里,空间手法让观者以沉思,给予放空、静心;亦把以家庭生活为主体的生命旅途,能凝聚成一幅一幅或平静或重彩的水墨画,凝聚成为一个个闪亮结晶。
所以,蕴藏着美学生活体验的琨悦里,并不仅仅是一座装饰和陈列的美术馆。人类的生活,与家有关的一切,才是我们真正值得尊重的艺术。琨悦里的美学存在价值是为了向生活致敬,是为了陈列最真实的生活艺术。
甚至于它的晴窗之永,能给予观者以积极情绪力量,能够开启新的更有意思的旅途,溯洄从之,溯游从之。归来时有着更闪烁的如炬目光,迸发新的感官体验。
我们希望琨悦里展示区能在自然时序的抽象表达与文化基因的当代激活间找到平衡,构建一个超越时间的容器——既承载昆山的历史肌理,又容纳未来的社群活力。
空间应为人提供自由的时间选择。琨悦里展示区在未来,将通过弹性空间模块,把不同的生活场景与美学体验相结合,模糊商业、社交与休闲的边界。在周末的白天,他的空间可以演变为市集,在夜晚转为社群舞台,容纳幕布,餐酒吧等等功能,释放空间的时间包容性。
通过局部的 “时间留白区域”,我们也期待和鼓励使用者自主定义场景,最终形成有机生长的社区生态。
给生活空间留白,是给居住行为让路。不应让示范区和销售行为去影响和干扰生活的自有逻辑。我们将常见的空间片段或延展,或挤压,或开合,或赋予张力,给生活赋予艺术作品一般的尊重态度,为生命之美的绽放提供光影舞台。而在一定程度上,建筑反而是消隐及低调的。有一座美学馆固然是好,没有,亦不妨碍我们对生活之美的信仰。但是这一道门,这一堵墙,这一砖一瓦,再不是只是空间的围合,她应该有仪式感,能让人进出之间被熏陶,被教化,以及反转过来,他们能够记录和见证在这个空间里发生的一切关于生活的精彩。
昆山琨悦里
售楼处电话400-186-1314转6000【售楼中心】
线上预约——尊享优价——售楼处中心——线上唯一售楼处
售楼处电话400-186-1314转6000【售楼中心】
专业的顾问 ——1对1的服务讲解——让您至享而归
售楼处电话400-186-1314转6000【售楼中心】
声明:本文由入驻焦点开放平台的作者撰写,除焦点官方账号外,观点仅代表作者本人,不代表焦点立场。
