绍兴禹州印樾府售楼处电话→绍兴禹州印樾府营销中心→售楼处首页网站→线上售楼处接待中心-户型价格配套
扫描到手机,新闻随时看
扫一扫,用手机看文章
更加方便分享给朋友
绍兴禹州印樾府
售楼处电话400-186-1314转6000【售楼中心】
24小时热线◆温馨提示:看房需提前预约
售楼处电话400-186-1314转6000【售楼中心】
〢尊享售楼处🍂销售专业讲解〢
◆在售房源户型价格详询售楼处〢一对一热情服务
【地块用途】城镇住宅用地
【土拍编号】柯桥城区G-08地块
【基本信息】总用地面积61767㎡,容积率1.92-2.07,计容建筑面积127857.69㎡
2
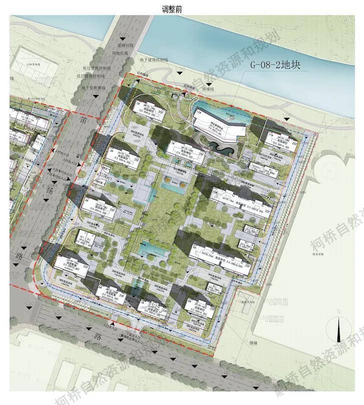
控规修改
本次调整内容如下:
1、6#、7#楼户型由一梯两户调整为一梯三户;位于6#楼一层、二层的居家养老服务用房以及6#、7#楼所在地下室区域作相应调整。调整后,户数由608户调整至653户,机动车位由1219个调整至1213个,非机动车位由1059个调整至1192个。
2、8#、9#、10#楼的165方户型内部分隔作调整。
3、场外景观方案局部调整。
具体细节为:
6#、7#号楼三层至二十四层住宅调整:大平层变小户型
8#、9#、10#号楼165方户型调整:空间分割调整
景观调整:
绍兴禹州印樾府
售楼处电话400-186-1314转6000【售楼中心】
线上预约——尊享优价——售楼处中心——线上唯一售楼处
售楼处电话400-186-1314转6000【售楼中心】
专业的顾问 ——1对1的服务讲解——让您至享而归
售楼处电话400-186-1314转6000【售楼中心】
免责声明::本人如无意中侵犯了某方知识产权,告诉即删
告之即删
声明:本文由入驻焦点开放平台的作者撰写,除焦点官方账号外,观点仅代表作者本人,不代表焦点立场。
