首页【盐城悦达玲珑湾】售楼处电话→【悦达玲珑湾】售楼中心首页网站→【悦达玲珑湾】楼盘百科详情-户型配套
扫描到手机,新闻随时看
扫一扫,用手机看文章
更加方便分享给朋友
盐城悦达玲珑湾
售楼处电话:400-186-1314转1111(中介勿扰)
盐城悦达玲珑湾售楼处电话:400-186-1314接通后输入1111楼盘详情介绍,位置、小区环境、房价、周边商业配套、户型等楼盘详情;预约咨询—提前联系咨询售楼中心置业顾问—进行预约登记来访!

悦达·玲珑湾项目由国企悦达地产打造,规划打造4栋叠墅和2栋洋房,仅108席,非常稀缺。
悦达·玲珑湾容积率仅1.1!容积率低,从居住实感出发,意味着这房子私密性越强,居住舒适度更高,人均占有的土地面积也更大,留给了业主更多绿地、花鸟和阳光......

小区住宅整体风格采用了目前主流的现代风格,简约大气,高贵典雅。

小区打造方面,悦达玲珑湾极为注重入户仪式感的营造,打造四进归家礼序。从星级酒店式的仪门开始,展现大家风范;穿越仪式树阵,感受元气归家路;步入宅间花园,体验人文品质的会客厅,最终抵达私享优雅的入户门厅。每一处细节都彰显着对品质生活的追求和尊重。

大户型起步,改善属性纯粹
洋房:建筑面积约141㎡ | 4室2厅2卫,一梯两户/南北通透/双开间阳台/豪华主卧套
洋房:建筑面积约143㎡ | 4室2厅2卫 ,一梯两户/南北通透/双开间阳台/豪华主卧套
洋房:建筑面积约163㎡ | 4室2厅2卫,一梯两户/超大玄关/豪华主卧/ 干湿分离
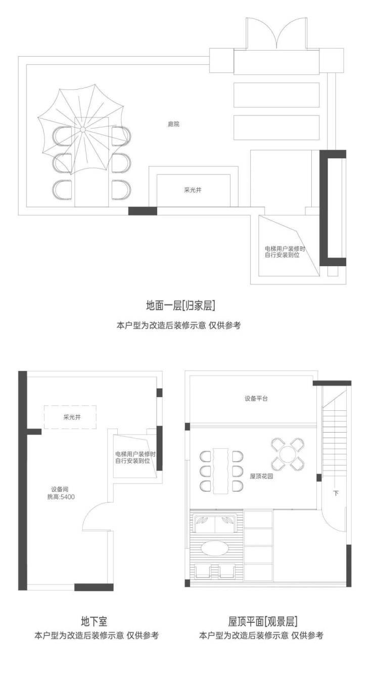
叠墅:建筑面积约175㎡ |3室2厅3卫
2025盐城悦达玲珑湾售楼处电话:400-186-1314转1111最新房价/详情
◆◆售楼处电话:400-186-1314 接通后输入1111◆◆
◆◆来电预约登记——〢尊享Vip一对一专业置业顾问讲解◆◆
◆◆基本信息介绍,地址,户型,价格,位置,医疗教育,商业交通配套!◆◆
◆◆免责声明:本文图片皆来源于网络如无意中侵犯了某方的知识产权,告知即删◆◆
声明:本文由入驻焦点开放平台的作者撰写,除焦点官方账号外,观点仅代表作者本人,不代表焦点立场。
