上海大众河滨大厦售楼处电话→上海普陀大众河滨大厦百度认证→楼盘详情-房价户型→配套楼盘详情→首页网站→热搜焦点
扫描到手机,新闻随时看
扫一扫,用手机看文章
更加方便分享给朋友
上海普陀大众河滨大厦
售楼处电话400-186-1314转6000【售楼中心】
24小时热线◆温馨提示:看房需提前预约
售楼处电话400-186-1314转6000【售楼中心】
〢尊享售楼处🍂销售专业讲解〢
◆在售房源户型价格详询售楼处〢一对一热情服务
不限购 不限贷
建面约59㎡精装公寓
总价约:390~398万
现房销售 最后2套

项目基础信息
项目名称:大众河滨大厦
建面约:40-59平米
在售体量:2套59㎡
总价约:275-410万
总高:23层(13.14跳层)/层高:3.1米
梯户比:4梯20户
交房时间:现房
拿地时间:2003年/竣工:2004年
产权:50年
开发商:上海九羚置业有限公司
物业: 上海大众河滨酒店管理有限公司
物业费:4.8元/平
电费:峰8毛/度;谷4毛/度
水:5.5元/吨
绿化率:40%
得房率:70左右
装修标准:全系装修交付
车位租赁:约800元/月

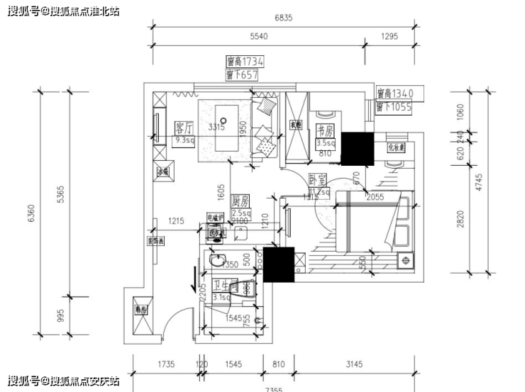
在售户型图及样板间照
建面约40㎡户型图▼
(该户型已售馨)

建面约59㎡户型图▼

样板间照如下所示:





项目卖点
内环内:13号线(武宁路站)87米(数据来源于高德地图)
采光:户型方正,视野开阔,空间布局合理,麻雀虽小五脏俱全。
安全:24小时物业值守,智能安全监控!
区域:长寿板块,醇熟配套。
装修配套:全屋智能家电家具
项目区位配套
项目位于普陀区长寿路和武宁路交叉口,13号线武宁路站地铁上盖,属于普陀区离中心城区最近最繁华地段,苏州河以南!紧邻静安区
交通配套:立体交通网络,距地铁13号线(武宁路站)约87m,北翟高架/北横通道能通达市内外/虹桥枢纽,立体交通无忧出行(以上数据来源于高德地图,直线距离)

商业配套方面:自带商业配套豪浦广场!
1公里内:889广场/我格广场/新百安商场/亚新生活广场
3公里内:环球港/久光百货/龙之梦购物公园/恒隆广场/巴黎春天
1公里菜场:余姚菜市场/美天长支菜市场
(以上数据来源于高德地图,直线距离)

医疗资源方面:曹家渡街道社区卫生服务中心约800m,静安区中心医院约2km(综合医院),普陀区人民医院约1.6m (二甲医院),3公里内(三甲医院):复旦大学附属华山医院/华东医院/同济大学附属上海肺科医院(以上数据来源于高德地图,直线距离)
休闲配套方面:2公里内中山公园,静安寺,玉佛禅寺等,5公里内长风公园,宋庆龄故居,人民公园,人民广场等(以上数据来源于高德地图,直线距离)
普陀内环内 13号线87米
【大众河滨大厦】
不限购 不限贷
建面约59㎡精装公寓
总价约:390~398万
现房销售 最后2套

上海普陀大众河滨大厦
售楼处电话400-186-1314转6000【售楼中心】
24小时热线◆温馨提示:看房需提前预约
售楼处电话400-186-1314转6000【售楼中心】
〢尊享售楼处🍂销售专业讲解〢
◆在售房源户型价格详询售楼处〢一对一热情服务
声明:本文由入驻焦点开放平台的作者撰写,除焦点官方账号外,观点仅代表作者本人,不代表焦点立场。
