【嘉兴华润润府】售楼处电话→售楼处(欢迎您)户型价格→24小时咨询电话

安庆楼市发布 2025-03-17 11:32:00
用手机看
扫描到手机,新闻随时看

扫一扫,用手机看文章
更加方便分享给朋友

嘉兴华润润府 2025(最新发布)售楼处电话; 售楼处位置; 售楼处地址; 电话! ◆◆嘉兴华润润府售楼处电话:400-186-131转1111最新房价/详情 ◆◆售楼处电话:400-186-1314 接通后输入1111◆◆ ◆◆来电预约登记——〢尊享Vip一对一专业置业顾问讲解◆◆

嘉兴华润润府

售楼处电话:400-186-1314转1111

嘉兴华润润府售楼处电话:400-186-1314接通后输入1111楼盘详情介绍,位置、小区环境、房价、周边商业配套、户型等楼盘详情!

项目基本情况

◆项目名称:嘉兴华润润府示范区长效花境

◆项目地址:嘉兴商务大道与长水路交汇处(东北侧)

◆施工单位:苏州满庭芳景观工程有限公司

◆进场日期:2023年5月16日

◆完工日期:2023年5月20日

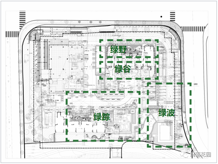
以“绿野仙踪”作为花境主题,四个区域分别以绿野、绿谷、绿踪、绿波四个主题来诠释。色彩以绿色为主,点缀蓝、紫、粉色,营造一种幽静野奢的氛围,开启一段沉浸式的山林之旅。从喧嚣到安静,从城市到家园,在奔波忙碌时坐拥一方幽静,回到一处可静享时光、置放心灵的归处。

花境主题平面图

花境种植区平面分布图:

位置: 位于楼层底部的架空层。

思路:打造荫生、热带花境,选用叶片硕大的天堂鸟和滴水观音,通脱木,搭配枯树、鸟巢蕨、肾蕨、巴西美人、玉簪、大吴风草、金叶石菖蒲等植物来进行整个空间的打造。带来纯净的绿意,宁静且高级感。

嘉兴华润润府 2025(最新发布)售楼处电话; 售楼处位置; 售楼处地址; 电话!

◆◆嘉兴华润润府售楼处电话:400-186-131转1111最新房价/详情

◆◆售楼处电话:400-186-1314 接通后输入1111◆◆

◆◆来电预约登记——〢尊享Vip一对一专业置业顾问讲解◆◆

◆◆基本信息介绍,地址,户型,价格,位置,医疗教育,商业交通配套!◆◆

◆◆免责声明:本文图片皆来源于网络如无意中侵犯了某方的知识产权,告之即删◆◆

声明:本文由入驻焦点开放平台的作者撰写,除焦点官方账号外,观点仅代表作者本人,不代表焦点立场。