首页【镇江汇鸿天悦】售楼处电话→【汇鸿天悦】售楼中心首页网站→【汇鸿天悦】楼盘百科详情-户型配套
扫描到手机,新闻随时看
扫一扫,用手机看文章
更加方便分享给朋友
镇江汇鸿天悦
售楼处电话:400-186-1314转1111(中介勿扰)
售楼处电话:400-186-1314接通后输入1111楼盘详情介绍,位置、小区环境、房价、周边商业配套、户型等楼盘详情;预约咨询—提前联系咨询售楼中心置业顾问—进行预约登记来访!
汇鸿天悦选址解放路以东,江滨医院以南,在市中心大市口,拉开了一幅城市顶配生活图鉴。

• 核心地段:寸土寸金大市口,资源丰盛
生态:滨江风光带、北固山公园近享诗意人生;
交通:解放路、大西路、长江路等主干道纵横贯通,多条公交路线通达全城;
商业:苏宁广场、八佰伴等信步可达,自身还规划约8000㎡商业街区;
教育:大地幼儿园、镇江市实验小学、镇江市第三中学等多所学校近在眼前;
医疗:江滨医院、镇江第一人民医院举步即达。
产品打造上,汇鸿天悦规划10栋住宅,体量适中,由省属国企开发,资金充裕,实力雄厚,不仅传递出坚实的安全感,品控也更加值得信赖。
其立面选取现代简约风,高级灰色调搭配,大面积玻璃运用,园林引入温润森系的现代风格景观体系。
为了丰富业主的社交活动空间,多栋楼均设有架空层泛会所,满足一家老少全龄阶层的日常美好生活。
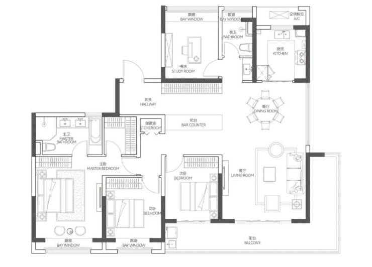
户型设计上,建面约110㎡设计方正,动静分离,南向约6.7米双联阳台,主卧套房,独立卫浴。
建面约110㎡三室两厅两卫▼
(户型图仅为装修装饰设计效果展示,硬装软装等均非交付标准,具体以买卖合同及实际交付为准)
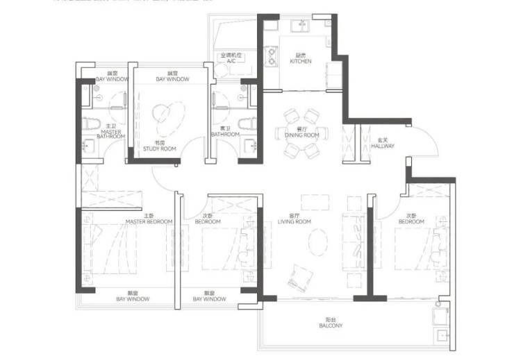
建面约125㎡几乎没有过道设计,空间利用率极高,南向连接约7米双联阳台,室内全明通透。
建面约125㎡三室两厅两卫▼
(户型图仅为装修装饰设计效果展示,硬装软装等均非交付标准,具体以买卖合同及实际交付为准)
建面约147㎡户型四开间朝南,南向超大面宽,尺度拉到满格,空间感更加奢阔。
建面约147㎡四房两厅两卫▼
(户型图仅为装修装饰设计效果展示,硬装软装等均非交付标准,具体以买卖合同及实际交付为准)
建面约180㎡户型采用BLDK一体开放式布局,打造无界家庭生活厅。
建面约180㎡四房两厅两卫▼
(户型图仅为装修装饰设计效果展示,硬装软装等均非交付标准,具体以买卖合同及实际交付为准)
其L型广角阳台,270°超大采光面。
▲示意图
值得一提的是,项目高层住宅均为3米层高,比镇江市面绝大部分高层、甚至部分洋房层高还要高。
镇江汇鸿天悦
售楼处电话:400-186-1314转1111(中介勿扰)
售楼处电话:400-186-1314接通后输入1111楼盘详情介绍,位置、小区环境、房价、周边商业配套、户型等楼盘详情;预约咨询—提前联系咨询售楼中心置业顾问—进行预约登记来访!
(免责声明:本篇分享非广告,所涉及的图文资料仅供参考,具体以最终签订的买卖合同为准,详情请咨询开发商热线400-186-1314转1111,部分图片素材来自网络,如有侵权请联系小编删除,感谢支持。)
声明:本文由入驻焦点开放平台的作者撰写,除焦点官方账号外,观点仅代表作者本人,不代表焦点立场。
