绍兴柯桥元垄中南华著售楼处电话→绍兴柯桥元垄中南华著售楼中心首页网站→楼盘百科详情→24小时热线电话
扫描到手机,新闻随时看
扫一扫,用手机看文章
更加方便分享给朋友
绍兴柯桥元垄中南华著
售楼处电话400-186-1314转6000【售楼中心】
24小时热线◆温馨提示:看房需提前预约
售楼处电话400-186-1314转6000【售楼中心】
〢尊享售楼处1v1销售专业讲解〢
◆在售房源户型价格详询售楼处〢一对一热情服务
基本信息
价格:23000.00元/平方米
物业类别:普通住宅
项目特色:品牌地产
国际化社区不限购
建筑类别:板塔结合
装修状况:带装修
产权年限:普通住宅:70年
开发 商:元垄越房地产开发有限公司
楼盘地址:稽山路与双周路交叉口往西100米
销售信息
销售状态:待售
开盘时间:2019.8.31[开盘时间详情]
交房时间:2021-05-31[交房时间详情]
售楼地址:柯桥万达广场、 绍兴金帝银泰城
咨询电话:400-186-1314转9900
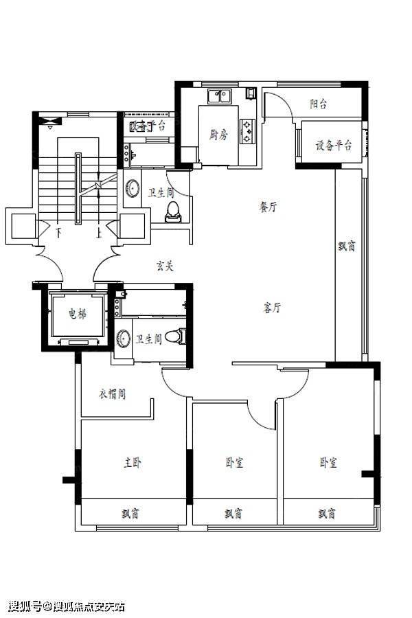
主力户型:2居(建面89㎡) 3居(建面127㎡) 5居(建面188㎡)
周边设施
交通交通便利,公交路线:818路
中小学无
大学暂无
综合商场地铁商圈、坂湖商圈、笛扬路商圈、万达商圈
医院柯桥区中医院、柯桥区中心医院
其他坂湖公园、马宅池公园
小区规划
占地面积:97574.1 ㎡
建筑面积:243935 ㎡
容积率:2.50
绿化率:30%
停车位:暂无
楼栋总数:暂无资料栋
总户数:2311户
物业公司:浙江垄业物业服务有限公司
物业费:2.6元/㎡·月
物业费描述:暂无
楼层状况:暂无
绍兴柯桥元垄中南华著
售楼处电话400-186-1314转6000【售楼中心】
线上预约——尊享优价——售楼处中心——线上唯一售楼处
售楼处电话400-186-1314转6000【售楼中心】
专业的顾问 ——1对1的服务讲解——让您至享而归
售楼处电话400-186-1314转6000【售楼中心】
免责声明::本人如无意中侵犯了某方知识产权,告诉即删
声明:本文由入驻焦点开放平台的作者撰写,除焦点官方账号外,观点仅代表作者本人,不代表焦点立场。
