金华婺城上品售楼处电话→(TOP.1)招商部楼盘百科-金华婺城上品售楼中心欢迎您-评测
扫描到手机,新闻随时看
扫一扫,用手机看文章
更加方便分享给朋友
金华婺城上品售楼处电话<金华婺城上品>售楼处24小时电话|楼盘详情

金华婺城上品
售楼处电话400-186-1314转6000【售楼中心】
24小时热线◆温馨提示:看房需提前预约
售楼处电话400-186-1314转6000【售楼中心】
〢尊享售楼处1v1销售专业讲解〢
◆在售房源户型价格详询售楼处〢一对一热情服务
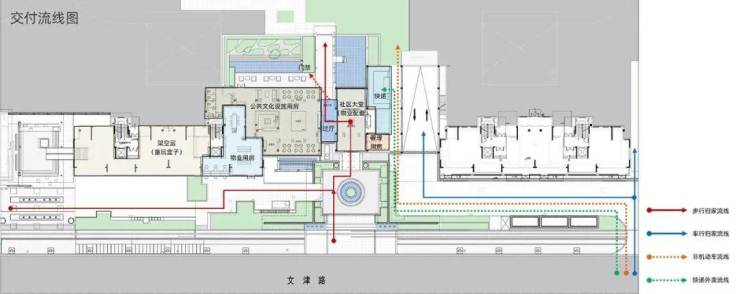
相较于传统示范区围绕售楼处或社区大堂的精雕细刻,金华婺城上品以一条多元复合的完整街区充分展示了完整的社区生活场景。以互动式、情景化、体验感为核心,营造不一样的城市烟火。在交付使用后亦可实现“零拆改”。
项目位于金华市婺城新城区临江西路以南、金江南街以东、文津路以北,总用地面积为86303.68 平方米。示范区位于基地西南角,一期展示范围约5000㎡;着力打造活跃的城市界面,营造丰富的生活体验空间。
*边界的消融
重新处理住宅与城市的边界线,利用外盒子打造更加精致友好、更有温度与品质感的城市界面。
沿街界面结合不同功能分别置入不同个性的盒子模块,并将边缘空间景观化。我们希望以更柔软的表情,让社区和城市的边界是可停留的、丰富性的、自然感的。市民可在此休憩,让建筑成为公园的一部分,也代替了围墙的功能,模糊了社区的边界。
*空间节奏
通过公共空间的尺度与表情的变化营造精彩而又丰富的多层级空间体验。
我们让建筑界面后退一步,拓宽步行道尺度,通过植物配置打破硬质界面的冷漠,让归家的心情松弛下来,启发业主去观察日常的细节。适当内退的建筑界面有了一定的围合感,结合城市绿带可打造小型商业广场,为城市集市等活动创造空间条件。
*城市界面
像运营商业一样运营社区,创造充满烟火气的城市界面,不同的建筑微表情讲述着每家小店自己的故事。
不同于传统街铺一致的设计语汇,本案赋予每段空间甚至每家铺面独立的建筑微表情,在同一屋檐下通过构成、材质、店招标识等细部的变化形成“一店一面”。而整体视觉感受又和谐统一、灵动而富有活力。
City Interface
01
缤纷市集
风情化的集市是营造烟火气的最好方式。在沿街面上,我们更关注场景的连续性,通过平面视觉系统、景观营造、城市家具植入等综合手段,让近人尺度的空间具有吸引力,做到有趣可亲。建筑一改传统街铺模式,采用大体块穿插的手法,营造综合体的都市感、昭示性及集聚效应。
City Interface
02
街角聚场
“街角聚场”这一空间模块被设想为街角的社区咖啡,让业主每次早晨的出发都伴随着香气与活力。它也是一处城市微客厅,大屋檐下的外摆吧台,大片木质肌理的引入,用温暖的质感塑造街区中看与被看的橱窗。
City Interface
03
活力街区
以宠物天地、便利店、烘培奶茶构成的休闲街区则涵盖日常生活所需。雨棚高度的错落,立面构成的“转折一下”,材质的变化以及个性十足的logo让每家店拥有面独一无二的极高辨识度与归属感。
City Interface
04
沙坑乐园与童趣盒子
这里是孩子的天堂。建筑间的空挡成为天然的节点空间,沙坑与滑梯是这里的主题,相邻的架空层灰空间的引入亦扩大了公共活动的场所,包含了海洋乐园、攀岩墙、手工区、涂鸦区等孩童玩乐设施,以及足够的可拓展空间,让孩子的天性释放不再被天气与空间所限。
City Interface
05
日咖夜酒
早C晚A是现代都市人具有标识性的生活方式,在童玩盒子与入口庭院间设置了一个“有烟火气”的Bistro餐酒吧,结合外摆,作为空间情绪的过渡场所,由城市的喧闹转换为居所的平静,亦是空间节奏的层次变化。
City Interface
06
落客庭院
充满仪式感的社区入口以及标志性的门廊是彰显社区品质的重要开始,也是访谈客户的集中诉求。
半围合的景墙自然限定了空间的层次:前场的归家庭院定义第一重归家礼序,后场创造穿林体验的第二重礼序,亦作为对景小品及辅助通道。前场和后场形成了一组完整的空间场域,创造如潮奢酒店般的归家体验。
City Interface
07
礼仪盒子
礼仪盒子与学习盒子共同构成售楼处主体。社区大堂两层通高的接待厅成为空间轴线的交点。一侧的休息区与过厅均与南北侧小庭院一玻之隔,模糊了内外界限,空间的渗透与流动在这里得以充分表达。作为沙盘洽谈区的学习盒子与南侧日咖夜酒可分可合,交付后成为业主社交学习的主要场所。
社区大堂立面以高奢酒店入口为对标,以黑金色彩体系为基调,以光盒元素作为主体,近三十米宽的体量与水平展开的入口,形成强烈的视觉冲击。
光盒子以香槟金L型格栅的变化排列为肌理,既有韵律又有节奏的起伏。横向灯带巧妙隐藏在小尺度的型材内,与竖向的格栅肌理在夜晚形成有趣的变化效果,昭示性品质感俱佳,亦可成为客户归家的指引灯塔。
金华婺城上品
售楼处电话400-186-1314转6000【售楼中心】
线上预约——尊享优价——售楼处中心——线上唯一售楼处
售楼处电话400-186-1314转6000【售楼中心】
专业的顾问 ——1对1的服务讲解——让您至享而归
售楼处电话400-186-1314转6000【售楼中心】
免责声明::本人如无意中侵犯了某方知识产权,告诉即删
告之即删
声明:本文由入驻焦点开放平台的作者撰写,除焦点官方账号外,观点仅代表作者本人,不代表焦点立场。
