苏州光信香雪雅院售楼处电话→苏州光信香雪雅院售楼中心首页网站【营销中心】楼盘百科详情-户型配套
扫描到手机,新闻随时看
扫一扫,用手机看文章
更加方便分享给朋友
苏州光信香雪雅院
售楼处电话400-186-1314转6000【售楼中心】
24小时热线◆温馨提示:看房需提前预约
售楼处电话400-186-1314转6000【售楼中心】
〢尊享售楼处🍂销售专业讲解〢
◆在售房源户型价格详询售楼处〢一对一热情服务
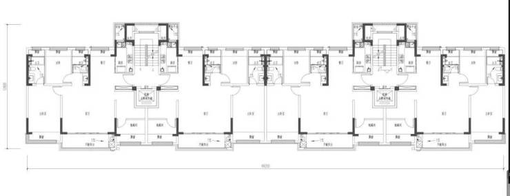
光信香雪雅院,即,苏地2023-WG-3号地块,位于吴中区光福镇苏福路北侧、福锦路西侧,是2023年2月16日,山西万信房地产开发有限公司以底价12929万元拿下,成交楼面价6500元/平。
项目的地块用途为城镇住宅用地,占地面积16576.2平,总建筑面积31914.6平,计容建筑面积19891.44平,容积率1.2,总户数155户。
根据规划,项目拟建9栋6F洋房。
同时,项目公示了1#、2#、8#的户型标准层示意图。
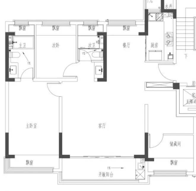
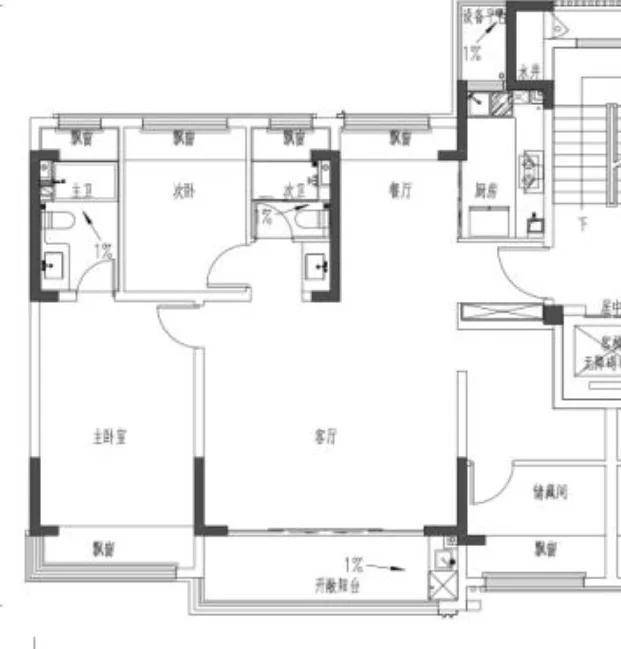
1#
6F洋房,层高3米
2梯4户
3房2厅2卫
3房2厅2卫的房屋套型
3开间朝南
客厅大宽厅设计,开间为5.6米
阳台开间也是5.6米
主卧,开间3.5米,套房设计,有独立的卫生间和衣帽间
多飘窗设计,赠送空间较多
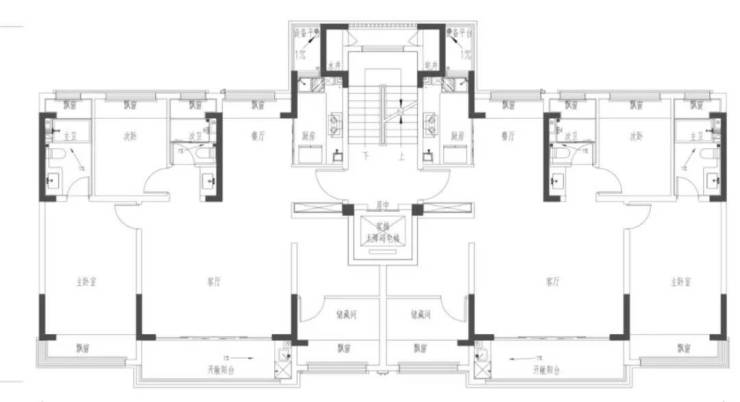
2#
6F洋房,层高3米
1梯2户
西边户,4房2厅2卫
4房2厅2卫的房屋套型
3开间朝南
客厅方厅设计,开间为4.5米
阳台是双开间设计,开间达7.7米
主卧套房设计,有独立的卫生间
多飘窗设计,赠送空间较多
东边户,4房2厅2卫
4房2厅2卫的房屋套型
4开间朝南
客厅大宽厅设计,开间为4.7米
阳台双开间设计,开间为7.9米
主卧套房设计,有独立的卫生间和衣帽间
多飘窗设计,赠送空间较多
苏州光信香雪雅院
售楼处电话400-186-1314转6000【售楼中心】
24小时热线◆温馨提示:看房需提前预约
售楼处电话400-186-1314转6000【售楼中心】
〢尊享售楼处🍂销售专业讲解〢
◆在售房源户型价格详询售楼处〢一对一热情服务
声明:本文由入驻焦点开放平台的作者撰写,除焦点官方账号外,观点仅代表作者本人,不代表焦点立场。
