无锡金科玖珑悦售楼处电话|无锡金科玖珑悦线上售楼处接待中心|楼盘首页网站|售楼中心AI看房-楼盘详情
扫描到手机,新闻随时看
扫一扫,用手机看文章
更加方便分享给朋友
无锡金科玖珑悦
售楼处电话400-186-1314转6000【售楼中心】
24小时热线◆温馨提示:看房需提前预约
售楼处电话400-186-1314转6000【售楼中心】
〢尊享售楼处🍂销售专业讲解〢
◆在售房源户型价格详询售楼处〢一对一热情服务
每一个业主从买房开始,对新家的落成都是充满期待的,想要提前知道小区的周边设施如何,想要知道小区内部的施工进度进行的怎么样了,想要提前知道自家的户型解析等。
您的需求就是我们对自身的要求,金科玖珑悦作为锦华装饰重点操作的楼盘,每周二我们都会安排我们的小伙伴去进行跑盘,为业主带来最新的施工进度照片,在去年的11月,锦华装饰就针对本小区的户型做了专业的研发,针对三口之家、四口之家、婚房、儿童房等不同需求的业主进行了专属的研发与方案细化。力求给到每一位到访业主有价值的方案参考。
话不多说,今天就带各位小主一起来了解一下本小区的“最新情报”。
小区楼盘简介及周边配套设施一览
小区名称: 玖珑悦(备案名:玖珑悦居)
小区均价: 32000元/平
物业类别:住宅
建筑类别:高层,花园洋房
装修状况:毛坯/精装
产权年限:70年
开发商:无锡福阳房地产开发有限公司
物业公司:阳光智博物业服务有限公司
楼盘地址:吴都路和华清大道交汇口东北侧
小区周边配套:
交通设施:快5线,7路,23路,33路,38路,59路,113路,128路,358路,760路,780路,503路。地铁四号线二期,地铁一号线塘铁桥站。
购物:壹加壹超市,沐之琴乐器行,果然不错鲜果旗舰店。
银行:中国邮政储蓄银行,江苏银行,中国建设银行
餐饮:老地方烧烤,丰盛饭店,鸿运饭店,楼尚私房餐厅。
教育设施:学校设施18处,包含无锡市和畅实验小学,无锡外国语学校,江南中学太湖新城校区等。
医院设施: 华清医院住院部,霏尔宠物医院,无锡寄家门诊部等。
周边公园:蠡河生态景观公园,尚景公园。
【周边配套设施图片从左往右,依次为无锡市和畅实验小学、江南中学、中国邮政银行、霏尔宠物医院、无锡华清医院、无锡蠡河生态景观公园】
小区目前施工进度
小区目前外立面已全部结束,小区房屋内部建设也已基本到位,小区内部精装设施也基本已安装结束,现在做小区内部设施的绿化与部分精装主材设施的安装。
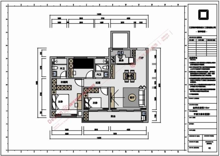
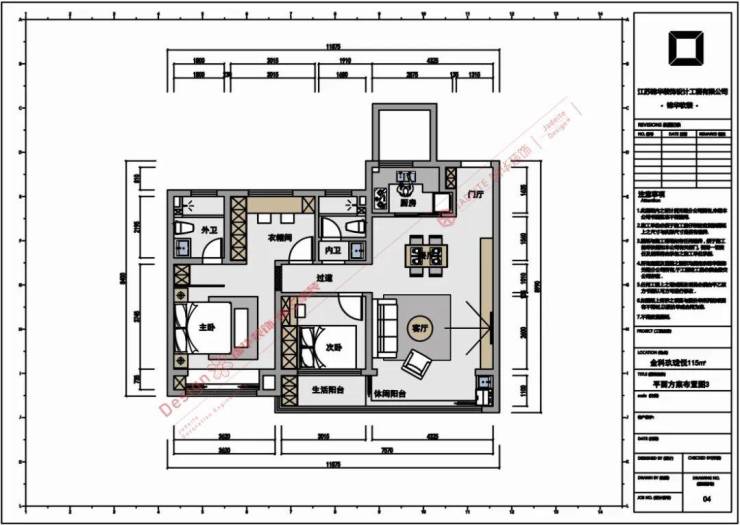
小区户型解析一览
滑动查看115㎡更多户型解析资料
滑动查看137㎡更多户型解析资料
锦华装饰家居生活体验馆位于南湖大道855号(扬名科技创业中心)有装修需求的朋友欢迎到现场观摩,这里汇聚了当下家居畅销品牌,选购建材品质生活一步到位;还备有沉浸式家居样板间,家装效果全景还原;更有百余位资深设计师坐镇现场,与您一对一、面对面畅聊设计方案。有装修需求的朋友欢迎到现场观摩。
MORE CASE
点击查看更多更多无锡楼盘户型解析资料
售楼处电话400-186-1314转6000【售楼中心】
线上预约——尊享优价——售楼处中心——线上唯一售楼处
售楼处电话400-186-1314转6000【售楼中心】
专业的顾问 ——1对1的服务讲解——让您至享而归
售楼处电话400-186-1314转6000【售楼中心】
声明:本文由入驻焦点开放平台的作者撰写,除焦点官方账号外,观点仅代表作者本人,不代表焦点立场。
