中景尚海城售楼处_#@楼盘详情_常州中景尚海城售楼中心欢迎您
扫描到手机,新闻随时看
扫一扫,用手机看文章
更加方便分享给朋友
✪常州中景尚海城
✪售楼处电话:400-186-1314转8888销售(已认证)
✪常州中景尚海城售楼处电话:400-186-1314接通后输入8888【售楼中心】
✪温馨提示——拨打400电话——听到嘀声后——输入分机号8888即可通话-基本信息介绍,地址,户型,价格,位置,医疗教育,商业交通配套!

绿化率: 35%
容积率: 1.99
车位: 3038个
当期户数: 1983户
物业费: 1.8元/m²/月
占地面积: 138382平方米
建筑面积: 409622平方米
物业公司: 常州中景物业管理有限公司

周边配套:
医疗:金坛第二人民医院、金坛金沙医院、老人山骨科医院、常州市金坛血站、新时代口腔、润芝康而美。
银行:江南银行、江南银行金坛数据中心、江南农村商业银行数场)、中国工商银行(金坛东环二路支行)、中国银行(金坛政务中心支行)。
商业:风情商业街、江南农村商业银行总部大厦、江南农村商业银行数据中心、翠园商业广场、苑东)、江南农村商业银行(金虹支行)。
交通状况:
公交:16路18a路;金坛118路;金坛23

楼盘介绍
中景·尚海城占地面积约138382平米,建筑面积约 409622平米,容积率1.99。项目位于金坛区徐塘路东侧、金坛大道北侧。包含高层、洋房、双拼别墅等物业形式。
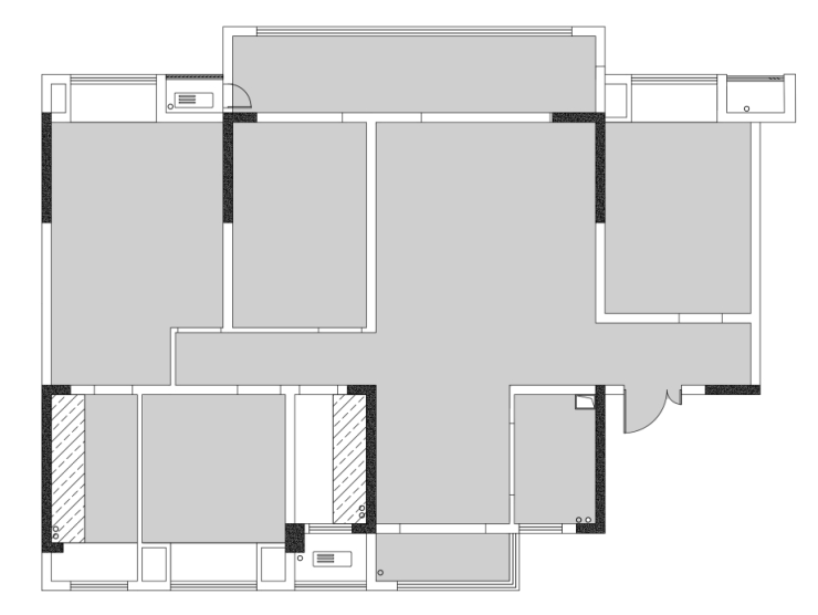
155平户型解析

户型优点:宽敞的公区开间,南北通透,采光充沛,双卫和宽敞的阳台大大的提高了整体居住舒适度。
户型缺点:厨房空间狭小,内部操作和收纳压力较大;西南次卧空间紧张,内部布局受限。


✪常州中景尚海城
✪售楼处电话:400-186-1314转8888销售(已认证)
✪常州中景尚海城售楼处电话:400-186-1314接通后输入8888【售楼中心】
✪温馨提示——拨打400电话——听到嘀声后——输入分机号8888即可通话-基本信息介绍,地址,户型,价格,位置,医疗教育,商业交通配套!
免责声明:本文图片皆来源于网络如无意中侵犯了某方的知识产权,告之即删!
声明:本文由入驻焦点开放平台的作者撰写,除焦点官方账号外,观点仅代表作者本人,不代表焦点立场。
