定了!新安庆西高铁站房建筑面积6万方,预留轨道交通1号线
扫描到手机,新闻随时看
扫一扫,用手机看文章
更加方便分享给朋友
原标题:定了!新安庆西高铁站房建筑面积6万方,预留轨道交通1号线
来源:安庆崛起
中国铁路经济规划研究院有限公司今日公布关于新建安庆至九江铁路新安庆西站建筑概念设计方案征集澄清和补充文件:
澄清文件:
新安庆西站:总建筑面积暂按60000㎡控制,按一次性规划、分二期实施的原则设计。其中一期工程为北站房、安九铁路车场上方的高架候车室,建筑面积暂按40000㎡控制(含架空层及地下空间面积),二期工程为南站房及预留车场上方的高架候车室,建筑面积暂按20000㎡控制。(2018-10-10)

文件具体内容如下
澄清文件
新安庆西站:总建筑面积暂按60000㎡控制,按一次性规划、分二期实施的原则设计。其中一期工程为北站房、安九铁路车场上方的高架候车室,建筑面积暂按40000㎡控制(含架空层及地下空间面积),二期工程为南站房及预留车场上方的高架候车室,建筑面积暂按20000㎡控制。
新安庆西站补充文件
项目名称变更:新建安庆至九江铁路新安庆西站站房与站前广场概念设计方案
设计内容变更:在原来设计内容基础上增加站前广场规划设计。
1.站前广场规划设计技术条件
1.1方案研究范围
研究范围南至站南路(快速路),北至站前路(主干路),东西分别为独秀大道(主干路)、经七路(次干路)(详见附件图纸)。
1.2规划设计目标
通过规划设计,完善新安庆西站综合客运枢纽职能,促进铁路与城市功能的融合,促进土地集约高效利用,提高可利用空间的旅客配套服务功能,改善区域交通条件、服务功能和环境品质,提高城市综合效益,带动周边区域的发展。
结合铁路客流的特点、周围区域的交通流量,充分考虑火车站周边区域交通组织,建设一座含长途大巴、出租、公交、租赁车辆、游客服务中心、站前道路等多种交通方式“零换乘”的综合客运枢纽,打造以人为本、安全、便捷、舒适、高效的枢纽换乘环境。
2.设计要求
2.1设计原则
高效、集约化利用土地,整合功能与空间资源,合理布置各场站设施。充分考虑车站与城市的功能融合,达到高铁车站与枢纽内其它交通设施的合理衔接。大力发展公共交通,保证公共交通的便捷衔接。营造舒适宜人的城市公共空间,并在公共空间的基础上建设贯通整个地区的连续的步行系统。
2.2交通规划设计要求
2.2.1结合广场景观设计合理组织交通设计,建议人车分流,统筹出租车站、公交车站、社会车停车场的设计,站前广场周边预留后期建设用地,并考虑未来交通组织的合理衔接。
2.2.2区域整体建筑规划开发体量需与规划交通系统支撑条件相匹配,规划范围道路交通系统应与区域周边城市骨架路网保持顺畅衔接。
2.2.3应结合区域周边的现状和规划公共交通,做好公共交通的接驳设计。
2.2.4组织好停车设施与区内道路的衔接关系。组织好区域各个建筑单体间人行流线的交通组织。
2.3建筑设计要求
建筑风格、色彩应彰显地域文化特色和城市历史底蕴。
2.4绿化景观设计要求
绿化景观应以保留自然及人工要素为核心,塑造人性化的绿化景观环境。
2.5竖向规划要求
竖向设计应根据现有地形,合理平衡土方量,满足各功能建筑的使用要求。
2.6规划建设指标

2.6.1土地使用性质
S3:交通枢纽用地;H09地块为新区长途客运站,配建旅游集散中心;S41:H13地块、H22地块,公交首末站用地;H15地块、H24地块出租车停车场与要客停车场;G3:广场用地,站北广场、站南广场;B1:商业用地,即站北广场低强度开发商业用地;H21:铁路用地,编组站、线路用地。
2.6.2车站广场标高
北广场:24.7-25.20m;南广场:24.7-25.20m。
2.6.3与铁路衔接的交通工具种类:轨道1号线、长途汽车站、公交车站、出租车停车区、私家车停车区等5类。
2.6.4开发强度
车场开发强度指标:容积率0.3-0.5(建议值)、建筑密度不做要求;商业用地开发强度:容积率1.8、建筑密度40%。
2.6.5建筑限高
S3:不做要求;B1:12米。
2.6.6绿地率指标
S3:20%;S41:不做要求;G3:20%;B1:20%;H21:不做要求。
3.设计内容
3.1站前广场的功能布局
3.2站前广场交通组织设计
3.3综合开发策划与商业综合体设计
4.评审内容
评审内容增加站前广场规划设计,具体内容包括:
4.1规划思路:体现以人为本、协同发展的思想,开拓思路,创新理念,充分考虑高速铁路与土地开发协调发展。
4.2总图布置:总体布局应符合城市发展总体规划,合理组织城市用地功能,布局公共服务设施,设计交通系统、河湖水系及绿化用地、城市景观等。
4.3交通组织:满足未来枢纽的使用需求,各种交通设施能妥善布局,交通流线清晰,创造安全、便捷、舒适、高效的枢纽换乘环境。
4.4建筑功能与形态:建筑功能布局合理,满足使用需求;建筑形态考虑铁路站房和综合客运枢纽设施的一体化设计,满足城市发展的需要。
茶岭高铁新区总体规划

▲站前广场

▲总体鸟瞰图1
高铁新区起步区控制性详细规划及城市设计
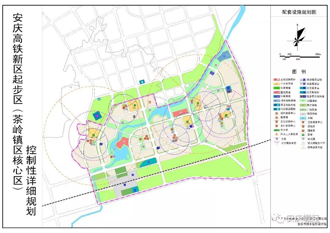
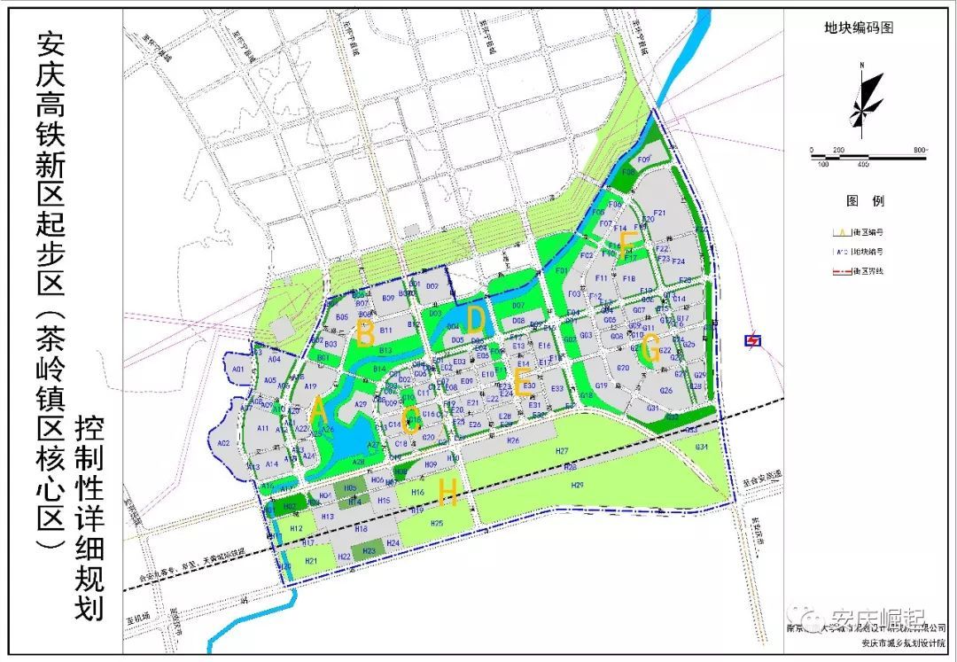
规划范围:东至新206国道,南跨铁路线,北侧、西侧分别结合现状地形以高压走廊、山丘为界,总规划用地面积约6.39k㎡。
规划概况:安庆市高铁新区起步区定位概况为“三心、四城”。“三心”:皖西南交通枢纽中心、安庆市城市副中心、怀宁县城市中心;“四城”:宜居之城、生态之城、服务之城、创新之城。起步区结构可以概括为:“一带一心、一河两岸、高铁伴城”。“一带”:由安庆主城区保留的现状206国道展开的商务研发旅游公共服务带;“一心”:围绕高铁站点交通公共枢纽形成的高端商务办公、商业服务核心;“一河”:沿现状万福河水系开敞空间展开的生态景观廊道;“两岸”:核心区内围绕拓水而成的茶岭湖形成对望的两岸商务商业区,整体起步区围绕“一河”形成相互联系的两岸生活区;“伴城”:以交通枢纽、山水自然景观为触媒带动发展的活力节点。

▲总体鸟瞰图2

▲总平面图

▲规划结构图

▲空间规划结构图

▲城市立面图

▲控规用地布局规划图

▲配套设施规划图

▲绿地景观规划图

▲地块编码图
茶岭镇总规
规划范围:茶岭镇镇域
规划概况:本次规划期限为2017-2030年,其中:近期:2017-2020年;远期:2021-2030年。规划形成中心镇区、中心村、自然村三个等级规模。依托良好的区位、交通优势,积极培育现代先进制造业、商贸服务等功能,发挥高铁交通枢纽站区的引领作用,大力发展现代先进制造业主导的产业园区;提升城镇的综合服务功能,大力发展商贸物流、旅游服务和现代生产服务业;至规划期末,将茶岭镇建设成为一个工业集群化、服务规模化、产业特色化的“工业重镇、商贸强镇、休闲名镇、宜居靓镇”,一个经济实力强劲、生态产业活跃、景观环境优美、人文精神淳朴现代化宜居高铁新市镇。

▲镇域镇村体系规划图

▲镇域镇村职能结构图

▲镇域农村居民点规划图

▲镇域产业空间布局规划图

▲区域交通体系衔接图

▲镇域空间分区管制规划图

▲镇域综合交通规划图

▲镇域公共服务设施规划图

▲镇域公用工程设施规划图

▲镇域旅游发展规划图

▲镇区空间结构图

▲镇区土地利用规划图

▲镇区道路系统规划图

▲镇区绿地系统规划图

▲镇区景观结构规划图

▲镇区近期建设规划图
延伸阅读——安庆市轨道交通规划
安庆市轨道交通规划概要
安庆的城市轨道交通为“主城‘双心’贯通放射状线网”,由3条线及一条支线组成,规划线路全长120.1公里,共设64座车站。
之所以称为主城“双心”贯通放射状线网,顾名思义就是以安庆老城区和东部新城为线网的两个核心向四方扩展。以此支持安庆“东进北扩、环山发展”的空间发展战略,促进新老城区融合和东部新城的开发。

安庆城市轨道交通线网规划图
构成这样的城市轨道交通线网靠的是3线一支,即1号线、2号线、3号线和1号线支线。这其中作为东西骨干线的1号线线路最长(45.6公里),车站数最多(25座),一旦建成也将是承担较大客流量的线路。
一号线

1号线起始于安庆西高铁站,终止于长风,途径集贤路、天柱山大道、振风大道(胜利一路)等地方。它将安庆西高铁站、北部高教园区、安庆石化居住区、火车站、公路客运中心、光彩大市场、政务中心、东部新城等主要客流集散点串联在了一起。
一号线支线

而1号线支线则起始与1号线的天柱山西路站,沿规划的天柱山大道向西穿越安庆石化工业区,跨石门湖至山口,止于规划的西四路。线路全长13.9公里,设5座车站。1号线支线的设立将将强山口与主城区的联系,促进安庆市承接产业转移集中示范园区的建设与发展。
二号线

2号线是南北向骨干线,起始于杨桥,终止于迎江寺,规划全长20.3公里,设14座车站。这条线将串联安庆机场、火车站、公路客运中心、老城区商业中心等客流集散地,并预留了延伸至大渡口的条件,可加强与大渡口地区的互动。
三号线

3号线是东西向的辅助线,起始于城北客运站,终止于安庆新港,全长40.3公里,设20座车站,3号线将白泽、规划中的潜江路市级商业中心、市体育中心、政务中心、老城区、海口、安庆新港串联一线。
连接线

以上这些线路将安庆城区构建出一套系统的轨道交通网,除此之外,该线网还具有向外进一步拓展的空间。规划中的市域轨道交通网,还将连接怀宁(S1线)、枞阳(S2线)、潜山(S3线)、望江(S4线)等地,将强了怀宁次中心、枞阳次中心、天柱山景区、望江县城与安庆中心城区的联系。
实施规划
安庆城市轨道交通的实施将分为三个阶段进行,排名前列阶段规划在2020前开工,此阶段作为安庆城市轨道交通的起步阶段,将建设1号线一期工程和2号线一期工程。两线西起安庆西高铁站,东至东部新城龙泽南路,北起安庆机场、南至迎江寺。将在安庆城市核心区形成“十字”形轨道交通主骨架网络。
第二阶段为2020年至2030年。将安庆城区周边的白泽、杨桥、海口、皖河农场等区域囊括进城市轨道交通网中,提高交通线网的密度和覆盖率,环节交通压力。第二阶段完成后,安庆中心城区的轨道交通线网将趋于完善。
第三阶段为2030年至2050年,1号线支线及市域轨道交通的四条线路将在此阶段开工建设,建成后,安庆城区与周边各地的联系将更为紧密,安庆轨道交通网也将得到优化和完善。
考虑到实际运量及技术标准等因素,规划中的城市轨道将采用中运量钢轮钢轨系统,及城市轨道B型车(即车宽为2.8米的车辆)。同时结合城市实际情况,适时采用包括地面、高架、地下等方式进行线路敷设。
1、安房网的所有原创新闻作品(包括新闻、信息、图片、视频及音频资料等),版权归安庆房地产交易网所有。未经书面授权不得转载、摘编或利用其它方式使用。违反上述声明者,本网将追究其相关法律责任,如需转载请来函或来电与安房网联系。
2、本网所转载的其他媒体作品,目的在于传递更多信息,并不代表本网赞同其观点和对其真实性负责。如因作品内容、版权和其它问题需要同本网联系的,请及时通知。返回搜狐,查看更多
责任编辑:
声明:本文由入驻焦点开放平台的作者撰写,除焦点官方账号外,观点仅代表作者本人,不代表焦点立场。
