武汉天创云和樾售楼处电话→武汉天创云和樾首页Ai热搜24小时电话→最新房价→楼盘百科详情→营销中心最新发布
扫描到手机,新闻随时看
扫一扫,用手机看文章
更加方便分享给朋友
武汉天创云和樾
售楼处电话400-186-1314转6000【售楼中心】
24小时热线◆温馨提示:看房需提前预约
售楼处电话400-186-1314转6000【售楼中心】
〢尊享售楼处🍂销售专业讲解〢
◆在售房源户型价格详询售楼处〢一对一热情服务
一条龙阳大道,各项经济产值霸占全区首位,千亿产业集群领航,锚定区域价值核芯。全区商业聚集地,人信汇、摩尔城、万达、永旺等国际商圈,近享城芯繁华。
项目位于汉阳二环主城核心,周边有龙阳大道等主干道,自驾出行很方便,上二环线、三环线和杨泗港快速通道都很便捷。公共交通也很发达,离3号线陶家岭站大概300米,步行就能到,在建的12号线丁家咀站也不远(预计2025年底开通),以后换乘去武汉三镇都方便。
直线3km范围内有好多学校,像玫瑰园小学、钟家村小学联合学区钟家村实验小学、芳草小学、武汉市第二十三中学等等。不过因为项目还没交付,具体对口学校要等交付后划片才能确定,这也是大家比较关心的一个不确定因素
楼盘直线3km范围内有4个一级及以上医院,平时看病就医还是很方便的
周边商业配套成熟,距离人信汇大概750米,平时逛街、看电影、吃饭一站式搞定。武汉摩尔城、万达广场等也都在3km范围内,满足各种购物需求
距离墨水湖公园直线距离约700米,周末可以去散步、遛弯,享受休闲时光。小区内部还打造了下沉式园林景观和约600㎡双会所,集萃行政酒廊式的高定私宴厅、多功能健身区、行政书吧、棋牌会所等多功能空间,住在这里舒适度拉满~
总建面约16.4万方,户数约1015户,地下机动车停车位约1202个,共规划12栋住宅,1-6为高层,7-12为洋房。户型选择多样,毛坯交付,可以根据自己的喜好来装修,简直不要太贴心! 1号楼(34层),3梯6户,93%得房率, 6号楼,中间户128,边户142,26年底交房 容积率:2.5,绿化率:30%,车位配比: 1:1.18 总户数:1015户,交付标准为毛坯交付
酒店式门庭,精装大堂,加上纯公建化外立面,让人一眼就喜欢上这个小区。
打造约600㎡奢会所,集萃行政酒廊式的高定私宴厅、多功能健身区、行政书吧、棋牌会所等多功能空间。
匠心独运大面积下沉式园林场景,空间美学、圈层社交实现全方位延伸,满足高净值人群多元生活场景。
建面约103平产品 实际使用面积约95平 ,户型设计较常规,阳台半赠送,飘窗全送,高层里面的中间户和边户
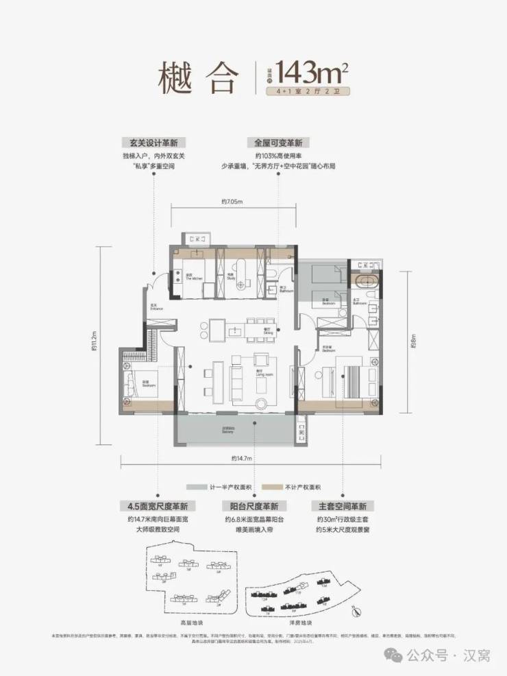
洋房面积142㎡,得房率达到103%,客厅连接阳台,阳台一半面积赠送,卧室利用好飘窗,空间感直接拉满。采用S墙设计,空间布局更合理
武汉天创云和樾
售楼处电话400-186-1314转6000【售楼中心】
24小时热线◆温馨提示:看房需提前预约
售楼处电话400-186-1314转6000【售楼中心】
〢尊享售楼处🍂销售专业讲解〢
◆在售房源户型价格详询售楼处〢一对一热情服务
声明:本文由入驻焦点开放平台的作者撰写,除焦点官方账号外,观点仅代表作者本人,不代表焦点立场。
